싸이트주소
(마이페이지)
카테고리 :
■
콤바인
■
트렉타
■
이앙기
■
경운기
■
관리기
■
나머지
현재위치 :
Home
>>
트렉타
>>
엘지트렉타
>>
등록책자
>>
65-94DT
>>
설명서
사진
|
설명서
|
엔진49~81
|
엔진82~116
|
클러치및브레이크117~147
|
조향148~195
|
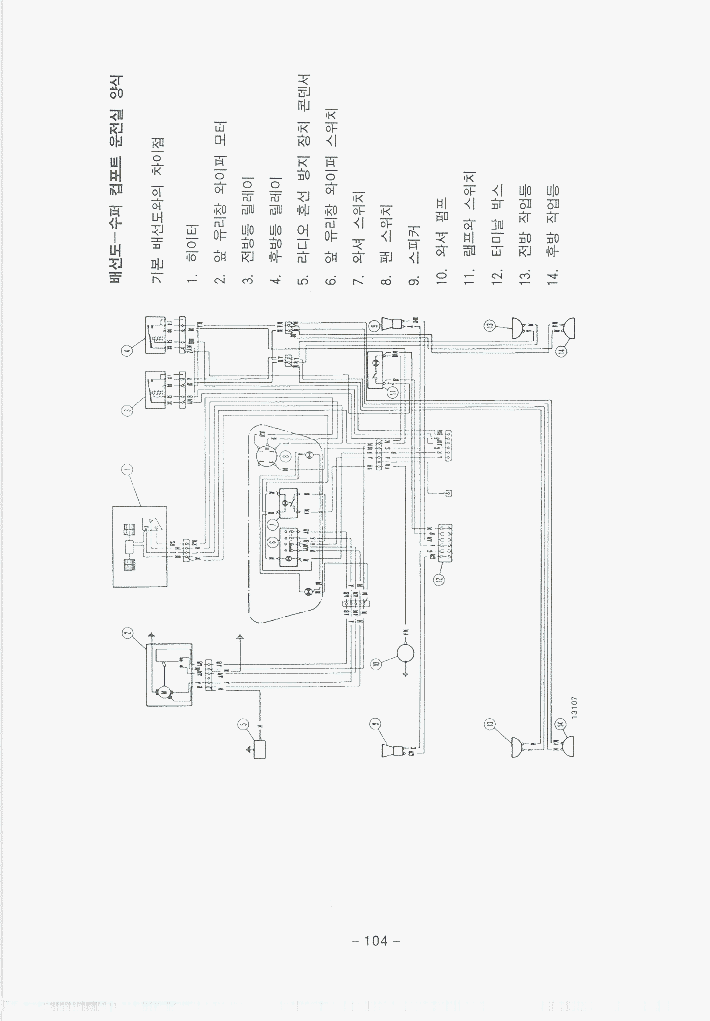
전기196~212
|
밋션213~231
|
외장캐빈및링크233~261
|
밋션262~287
|
유압289~350
|
뒤차축351~355
|
캐빈및PTO356~380
|
링크및기타381~425
|
로타리날_경운도
조인트모음